Больше информации по резюме будет доступно после регистрации
ЗарегистрироватьсяКандидат
Женщина, 33 года, родилась 18 августа 1992
Воронеж, готова к переезду, готова к командировкам
Где ищет работу
Воронеж
Все районыАрхитектор
20 000 ₽ на руки
Специализации:
- Архитектор
Занятость: полная занятость
График работы: полный день
Опыт работы 10 лет 5 месяцев
Август 2015 — по настоящее время
10 лет 5 месяцев
ООО "Генпроектстрой!
Воронеж
Архитектор 2 категории
Разработка архитектурных проектов, от концепции до рабочей стадии чертежей, работа со смежниками.
Навыки
Уровни владения навыками
Обо мне
Личностные характеристики:
Ответственная и коммуникабельна. Делаю расчеты для стадии Р и пояснительные записки
Участие в проектах:
Работа над такими проектами как:
- реконструкция среднее общеобразовательной школы в г. Пушкино (стадия П и Р);
- участие в разработки многоэтажного жилого дома в г. Старый Оскол (стадия П), который включал в себя в подвале спортивно-оздоровительный центр, первый и второй этажа - торговый центр;
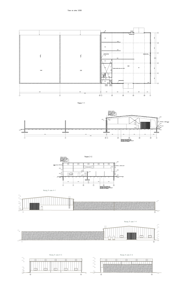
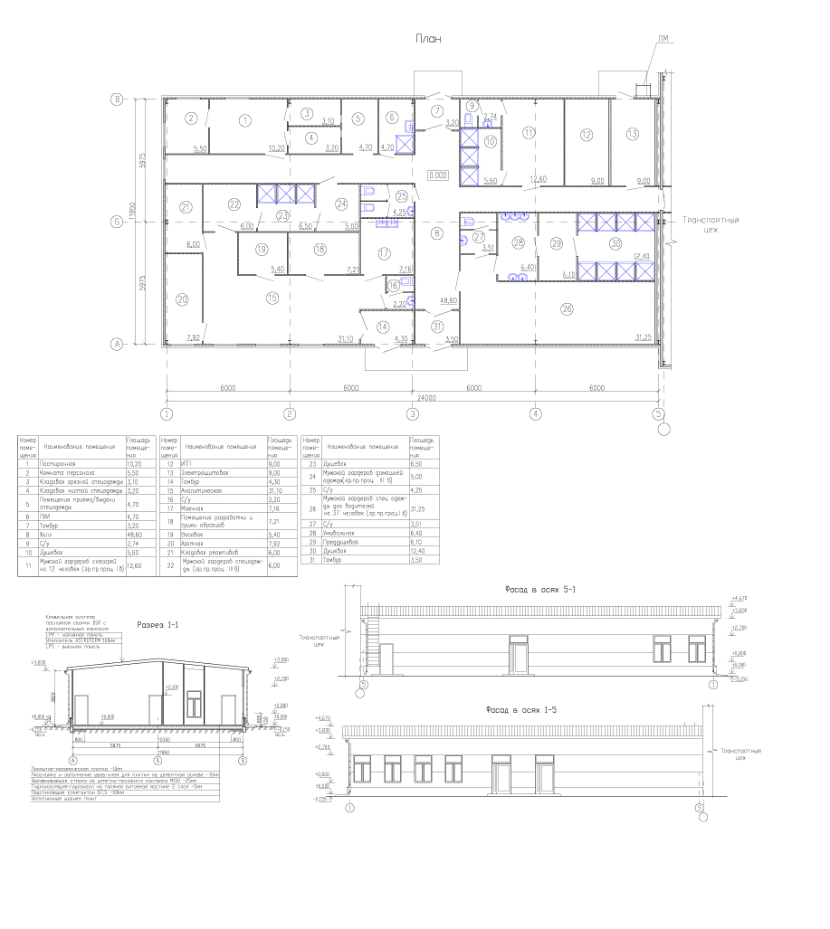
- участие в разработке проекта комплекса по выращиванию шампиньонов Агрокомбината "Здоровое питание" в г. Бобров (стадия П). Мною были разработаны такие объекты АБК чистой и грязной зон, КПП грязной зоны, склад, компостный цех фазы 1, цех покровной почвы
Образование
Среднее образование
Знание языков
Гражданство, время в пути до работы
Гражданство: Россия
Разрешение на работу: Россия
Желательное время в пути до работы: Не имеет значения




